Villa Bahía de Las Rocas (Sotogrande)
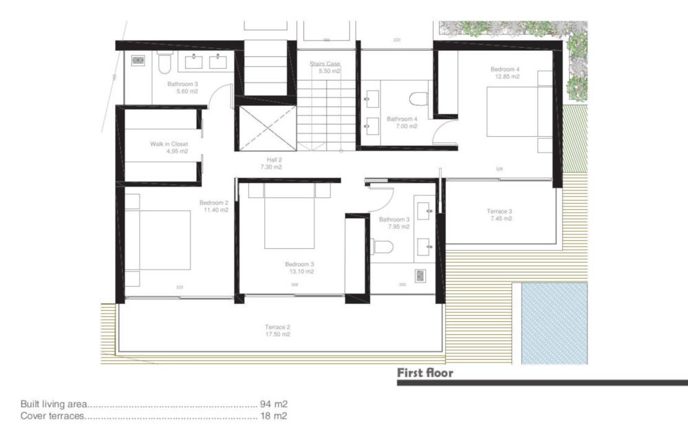
- 4 dormitorios
- 5 baños
590.000€
Cuidadosamente diseñada para crear una continuidad diáfana entre el interior y el exterior, y su planta baja abierta que se fusiona con la terraza. El contraste de los modernos y clásicos materiales, junto con una distribución funcional, trae consigo un agradable y acogedor hogar.
El diseño de Bahía de las Rocas utiliza las tendencias más novedosas y modernas de estilo contemporáneo.
Calidades de lujo
Calidades de alto nivel, usando únicamente los mejores mármoles, maderas y carpintería para nuestros diseños de lujo. Nuestros diseñadores de interiores internos trabajarán junto a usted para encontrar las mejores opciones en muebles y acabados.
- Parcela: 669m2
- Terrazas: 87m2
- Piscina privada
- Garaje privado
- Vistas panorámicas
Un hogar de ensueño
Construida en 2 niveles, esta espaciosa villa en la Costa del Sol será construirá con los mejores materiales. Su inteligente diseño aprovecha zonas estratégicas tanto para la luz del día, como de la tarde según la exposición al sol.
Situada próxima a Sotogrande, conocida como la capital del Polo en el Sur de Europa. Próxima también al Puerto La Duquesa y Estepona, con sus comodidades, servicios, restarutantes y actividades durante todo el año.
Solicite información
- 951 318 494
- info@eugest.com
- eugest.com










